
中空分離式千斤頂(彈簧回位)是荷蘭荷馬特holmatro液壓千斤頂系列產品,該品牌公司擁有超過五十年的歷史,1967年成立,現有煙臺開發區龍海起重工具有限公司銷售(品牌介紹:荷蘭荷馬特holmatro品牌)。

中空分離式千斤頂介紹:
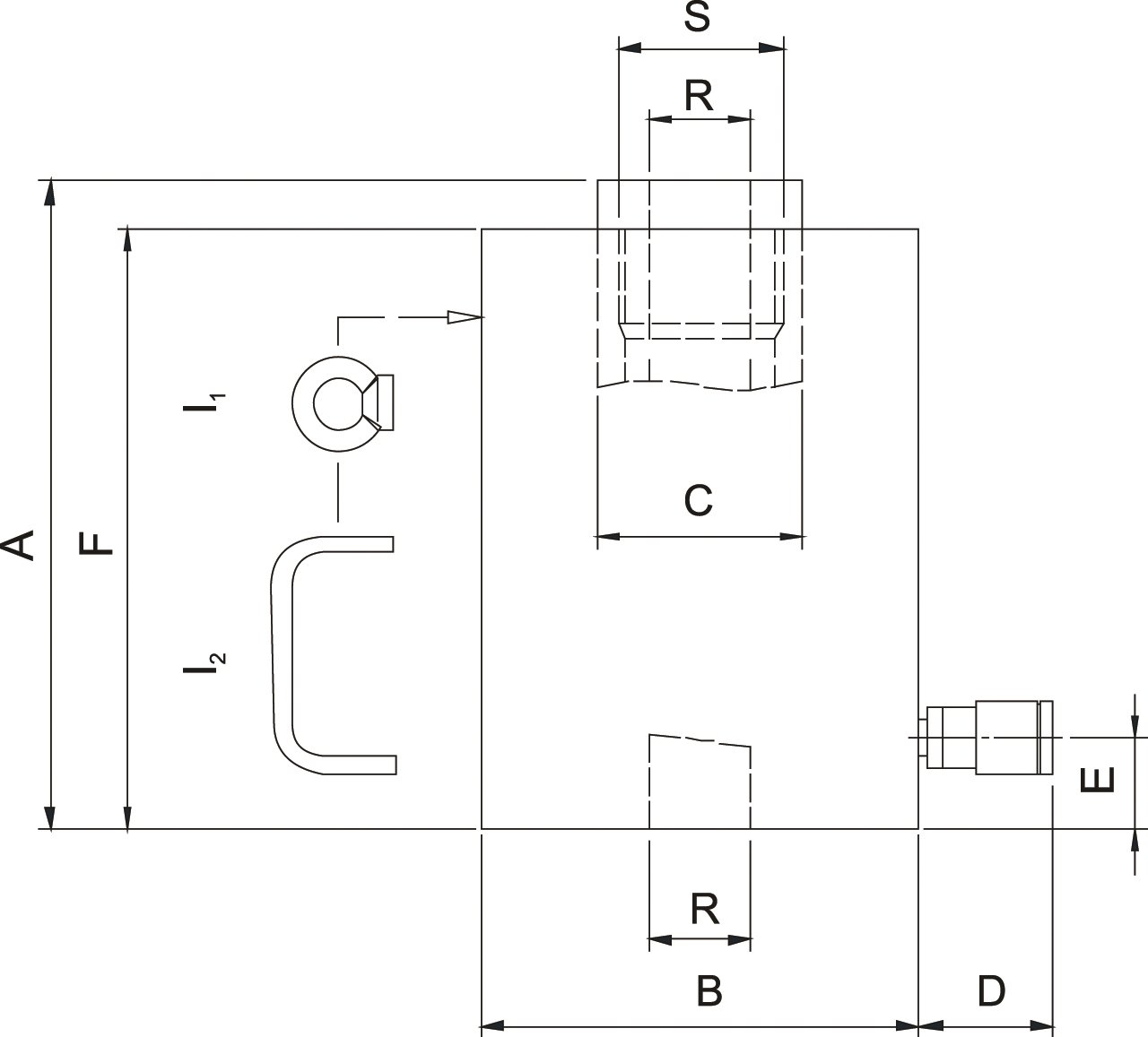
*中空分離式千斤頂采用單作用設計,彈簧回位中空油缸。特為拉伸使用而開發的拉桿
*中空分離式千斤頂結構緊湊緊湊適用于所有位置
*避免活塞噴出
*中空分離式千斤頂具有中空鞍座、可防止活塞損壞易于用螺紋或平面鞍座更換
荷馬特holmatro中空分離式千斤頂標配:
*高流量母接頭A118
*中空鞍座座,除了 HHJ 5 S 2.5, HHJ 12 S 5 和 HHJ 12 S 15 油缸


中空分離式千斤頂(彈簧回位)應用:
適用于橋梁升降、鐵路隧道建設、高空吊裝橋梁構件、施工與安裝、重型運輸機和起重機、礦廠、石油天然氣、船舶建造、儲罐施工和維護等場合

可應要求提供
*按客戶規定生產的
*頸部螺紋
*底部安裝孔

中空分離式千斤頂為荷蘭荷馬特holmatro原裝進口產品,保質1年,我公司承諾凡是客戶在我公司定購的進口類產品均為原裝正品,絕不存在拆件貨,換件貨,假冒品牌產品,凡客戶從我公司訂購荷蘭荷馬特holmatro產品如收到貨物時發現有拆件貨,換件貨,假冒、假貨仿貨均以100倍金額賠償。
產品選型:分離式千斤頂?